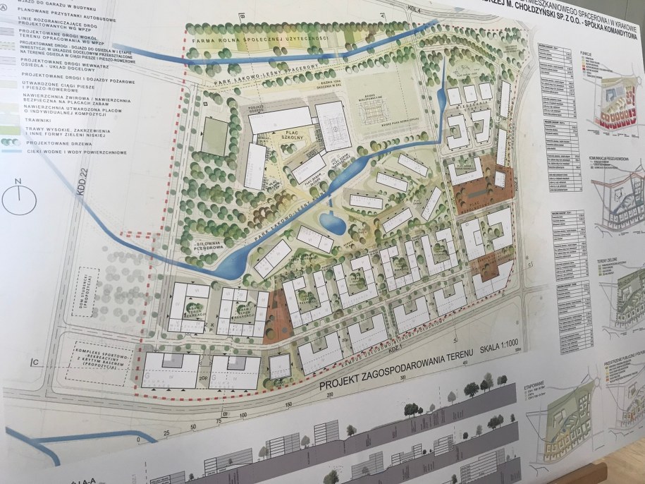
Spółka BGK Nieruchomości przedstawiła zwycięski projekt nowego krakowskiego osiedla Spacerowa, które ma powstać w ramach projektu Mieszkanie+. Wybudowanych ma być 30 bloków z ponad tysiącem mieszkań, w których będzie mogło zamieszkać prawie 3 tysiące ludzi. Projekt zakłada także stworzenie przy osiedlu szkoły, przedszkola i przychodni. Inwestycję przewidziano w południowej części Krakowa, pomiędzy osiedlem Kliny Zacisze a obwodnicą miasta, w miejscu, w którym znajdują się nieużytki. Dokładna koncepcja jest - jest jednak również pewien kluczowy problem: nie wiadomo, kto miałby zbudować drogę dojazdową do osiedla...
Co ciekawe, spore problemy komunikacyjne mają już okoliczne osiedla. Prywatni inwestorzy postawili bowiem w okolicy wiele budynków, ale wszelkie drogi dojazdowe są wąskie i jest ich zdecydowanie za mało. W godzinach szczytu prawie wszystkie się korkują. Nie ma także żadnej linii tramwajowej. "Blisko" jest stacja kolejowa - znajduje się po drugiej stronie autostrady.
Według Moniki Chylaszek z Urzędu Miasta Krakowa, budowa drogi dojazdowej leży w interesie inwestora.
Prezydent (Krakowa) stoi na stanowisku, że niezależnie od tego, kto jest inwestorem - czy jest to inwestor prywatny, czy jest to inwestycja rządowa, wszyscy powinni być traktowani w równy sposób. Więc jeżeli wymagamy, żeby prywatni deweloperzy wybudowali układ komunikacyjny, to tak też powinno być w tym przypadku - zaznacza w rozmowie z reporterem RMF FM Markiem Wiosło.
Spółka BGK Nieruchomości zamierza jednak sfinansować budowę nowych bloków i... niczego więcej. Miasto zaś nie ma w budżecie środków na nowe drogi.
Takie osiedle może być dla Krakowa ogromnym problemem. Ci ludzie będą chcieli tam wygodnie żyć, będą chcieli z tego osiedla wyjechać. Będą chcieli mieć też wszystkie usługi - mówi Chylaszek.
Chcemy, żeby znalazły się tam usługi podstawowe jak przedszkola i przychodnie - deklaruje Grzegorz Muszyński z BGK Nieruchomości.
Nie odpowiada jednak na pytanie, kto ich budowę sfinansuje.
Jeśli zaś chodzi o komunikację, to głównym połączeniem z centrum miasta ma być... kolej.
Jeśli chodzi o komunikację, chcemy ją oprzeć o połączenia kolejowe. Nie wykluczamy - tu będziemy rozmawiać z miastem - żebyśmy zrobili międzyosiedlowy shuttlebus, który będzie dowoził ludzi do przystanku kolejowego. Możliwe, że poprosimy PKP o zbudowanie nowego przystanku naprzeciwko osiedla - mówi Muszyński.
Budowa osiedla Spacerowa ma rozpocząć się w przyszłym roku.
(az, e)


