Zanieczyszczona gleba w centrum Krakowa na terenie dawnych zakładów tytoniowych przy ul. Dolnych Młynów 10 zostanie wymieniona. "W gruncie znajduje się cynk, ołów, kadm, arsen, cyna i rtęć" – przyznaje Ada Słodkowska-Łabuzek, rzecznik prasowy Regionalnej Dyrekcji Ochrony Środowiska. Pierwszy etap prac ma się zakończyć do 30 czerwca. Szacowany koszt wymiany zanieczyszczonego gruntu to 1,5 mln zł.
W lutym 2018 roku dziennikarze RMF MAXXX i RMF FM dotarli do dokumentów, z których wynikało, że w 2003 roku dopuszczalne normy dla takich pierwiastków jak arsen, ołów, czy bar były przekroczone kilkukrotnie. Doszło też do zanieczyszczenia wód gruntowych.
Po publikacji dokumentów z 2003 roku deweloper zapewniał dziennikarzy, że teren był czysty. W roku 2003 przeprowadzone analizy nie wykazały żadnych szkodliwych substancji i przekroczonych norm. Badania wtedy były przeprowadzone przez polską firmę z uwzględnieniem standardów polskich i międzynarodowych - przekonywał Aldo Ibanez ze spółki Immobiliaria Camins.
Po naszej interwencji działkę przebadała firma wynajęta przez Wydział Kształtowania Środowiska Urzędu Miasta Krakowa oraz firma wynajęta przez dewelopera. W obu przypadkach wykryto przekroczenia norm metali ciężkich w glebie. W zależności od lokalizacji mamy tam zanieczyszczenia metali ciężkich jak i węglowodorów. W gruncie znajduje się cynk, ołów, kadm, arsen, cyna i rtęć - tłumaczy Ada Słodkowska-Łabuzek, rzecznik prasowy Regionalnej Dyrekcji Ochrony Środowiska w Krakowie. Dopytywana o zanieczyszczenie wód gruntowych potwierdza, że czas zrobił swoje. To zostało już wypłukane. Z badań wychodzi, że wody nie są zanieczyszczone, więc w tym przypadku nie ma tego zagrożenia - zapewnia.
Według decyzji RDOŚ w Krakowie, właściciel terenu podzielił prace na dwa etapy. Pierwszy etap ma być zrealizowany do 30 czerwca 2019 roku, natomiast zgodnie z decyzją drugi etap ma być zakończony przed 2025 rokiem - dodaje Słodkowska.
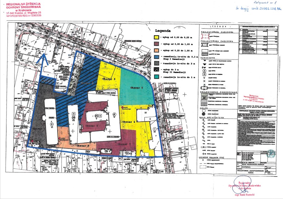
Wymiana gruntu będzie prowadzona na terenie o powierzchni ok 1,061 ha i obejmować będzie cały niezabudowany budynkami obszar.
Remediacją, czyli usuwaniem zanieczyszczeń, zajmą się specjalistyczne firmy. Oczywiście musi to być przez odpowiednie osoby przeprowadzane, czyli osoby, które są do tego przygotowane i potrafią postępować z tego typu odpadami. Musi być do tego specjalistyczny sprzęt, czyli samochody odpowiednio zabezpieczone tak, żeby podczas przewożenia tych zanieczyszczeń nie doszło do jakiegoś rozsypania, czy skażenia innych terenów - dodaje rzecznik RDOŚ. Wywożona ziemia musi być odpowiednio deponowana, przekazana firmom, które posiadają do tego zezwolenia i są odpowiednio przystosowane. Właściciel terenu nie przedstawił ich jeszcze Regionalnej Dyrekcji Ochrony Środowiska.
Ustalono, że część gruntu będzie wywożona i wymieniana, natomiast na pozostałym obszarze będą przeprowadzone metody stabilizacji, czyli solidifkacji terenu. To metoda bez wywożenia gruntu z terenu zanieczyszczonego.
Cały teren podzielono na 9 obszarów. 1 i 5 pozostaną na miejscu bez wywożeniu gruntu. Chodzi o rejony w sąsiedztwie ul. Czystej i Czarnowiejskiej. Obszary te zostaną zabezpieczone glinokrzemianem potasowym w celu solidifikacji, czyli zostanie metal ciężki zatrzymany i unieruchomiony w glebie, nie będzie też ryzyka wypłukania.
W pierwszym etapie prac inwestor musi wywieść ziemię z powierzchni 5010 m² terenu, w drugim 2600 m². W niektórych miejscach trzeba będzie kopać kilka metrów w głąb i innych jest to tylko powierzchniowe zanieczyszczenie - wyjaśnia Słodkowska.
Szacowany koszt wymiany zanieczyszczonego gruntu przy ul. Dolnych Młynów 10 wyniesie ok. 1,5 mln zł.
Autor: Przemek Błaszczyk
Opracowanie: Joanna Potocka


